Aanbod

Te koop: Heide 5, 5981 NX Panningen

Afbeelding1.jpg 1 Screenshot 2025-02-20 at 09-22-59 KadastraleKaart.com veraf.jpg 2 Screenshot 2025-02-20 at 09-21-22 KadastraleKaart.com - De gratis online kadasterkaart.jpg 3
€ 478.500,- k.k.
Type object Losse grond
Perceeloppervlakte 43.354 m²
Aanvaarding In overleg

Notitie

Algemeen

landbouwgrond te koop in Panningen;

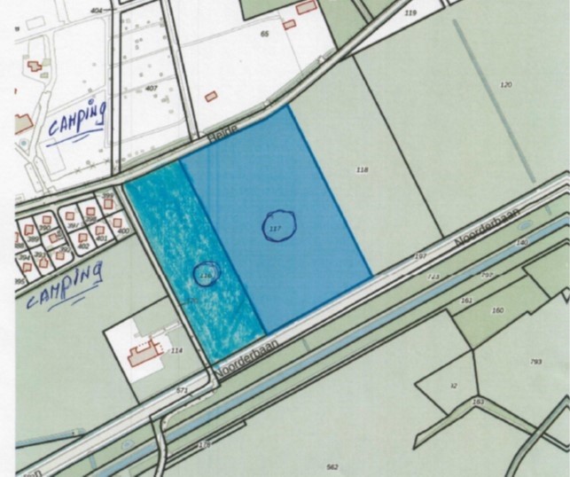
Mooi perceel landbouwgrond te Beringe groot 4,35 HA zichtlocatie
Sectie Helden H nr 116 en 117
Gelegen Noorderbaan / Heide nabij camping Beringerzand
Vlak perceel goed bereikbaar en van goede kwaliteit
Geregistreerde beregeningsput is aanwezig
Perceel met Agrarische bestemming
Geschikt voor diverse doeleinden
Aanvaarding in overleg
Verkoop bi... Meer informatie

Locatie

Kenmerken

Overdracht
Referentienummer 05471
Vraagprijs € 478.500,- k.k.
Aanvaarding In overleg
Aangeboden sinds Maandag 31 maart 2025
Laatste wijziging Dinsdag 6 mei 2025
Bouw
Type object Losse grond
Grondsoort Zand
Soort bouw Bestaande bouw
Oppervlaktes en inhoud
Perceeloppervlakte 4 ha 33 a 54 ca
Locatie
Ligging Aan bosrand
Aan rustige weg
Buiten bebouwde kom
Platteland
Kadastrale gegevens
Kadastrale aanduiding Peel en Maas S
Perceeloppervlakte 27.923 m²
Eigendomsituatie Eigen grond
Kadastrale aanduiding Peel en Maas S 116
Perceeloppervlakte 15.431 m²
Eigendomsituatie Eigen grond

Beschrijving

landbouwgrond te koop in Panningen;

Mooi perceel landbouwgrond te Beringe groot 4,35 HA zichtlocatie
Sectie Helden H nr 116 en 117
Gelegen Noorderbaan / Heide nabij camping Beringerzand
Vlak perceel goed bereikbaar en van goede kwaliteit
Geregistreerde beregeningsput is aanwezig
Perceel met Agrarische bestemming
Geschikt voor diverse doeleinden
Aanvaarding in overleg
Verkoop bij inschrijving

Foto's

ZonZone

Sluiten

Recent bekeken