Beschrijving

VERKOCHT onder voorbehoud!
bent u op zoek naar een woonboerderij met karakter? Oud met nieuw verweven tot een fraai geheel.
Er zijn vele mogelijkheden in de aangebouwde ontspanningsruimte en de chillruimte, welke, in combinatie met de ruim bemeten tuin met bos, een geweldig te beleven geheel vormt....

Indeling

Deze vrijstaande woning met aangebouwde schuur/garage in Hout-Blerick is gelegen aan de rand van de bebouwde kom, welke hier over gaat in het buitengebied. De Tangweg is de toegangsweg tot het gebied welke een corridor vormt tussen de Maas en het bebouwde gebied. De boerderijwoning is in 1940 gebouwd als tuinderswoning bij een agrarisch bedrijf. De woning is voornaam gebouwd met fraaie architectonische kenmerken. Zo zijn er enkele steunberen opgenomen in de bouw, is de woonkamer uitgebouwd en zijn er natuurstenen elementen aangebracht boven de getoogde ramen met een fraaie verdeling. Deze woning is in de loop van jaren aangepast op delen en heeft zijn bijzondere karakter geheel behouden! Het is er knus, warm, én gezellig wonen
Deze woning is gelegen op twee kadastrale percelen: gemeente Venlo sectie P nummer 177 groot 1835 m2 en gemeente Venlo nummer P 178 groot 940 m2. 
Totaal 2775 m2.
Aan de achterzijde is een stuwwal gelegen met daarop een bos en een zandverstuiving. U wandelt zo het bos in en kunt genieten van de natuur. U kunt er lange wandelingen maken te midden van een groen en open landschap. 
De Watermeule en de maas via de Romeinenweerd zijn mooi om te genieten in deze omgeving. 
In enkele minuten wandelt u naar de oude dorpskern met de typische kerk en het plein. Vanuit de kern Hout-Blerick is aan Westelijke zijde het Dubbrook gelegen met een diverse natuur.
Het landschap van Hout-Blerick wordt aan oostelijke zijde gekenmerkt door de Maas welke dé verbindingsader is in de omgeving.
De omgeving kent goede voorzieningen;  de basisschool  is binnen enkele minuten bereikbaar en het wonen is er aangenaam. Prima aansluiting via A73 en de A67.  Blerick is in 5 minuten bereikbaar, Venlo is in 10 fietsminuten te bereiken.                                                                                                                                                                                                De omgeving is erg in trek vanwege de natuur, diversiteit van het landschap en de korte afstand tot alle voorzieningen welke bij Venlo behoren. Het is geweldig om er te voet of met de fiets op uit te trekken!    
Deze boerderijwoning biedt u vele mogelijkheden. Van het houden van huisdieren tot het inpandig realiseren van een eigen bedrijf of aanleunwoning. Er is mogelijkheid om deze woning op eenvoudige wijze levensloop bestendig te maken. Het buitengebeuren bij deze woning is geweldig. De tuin biedt u optimale privacy.                           U kijkt aan de achterzijde naar de stuwwal met bos, en u geniet in de ruime, parkachtig opgezette tuin van al het groen. En, u kunt chillen in uw eigen honk. Een fraai opgezette “mancave”. Er is ruimte genoeg om uw droom werkelijkheid te zien worden! 

Constructie en materialen
• bouwjaar   			            : 1940, verbouwd in de jaren ‘90
• begane grond vloer 		: betonnen vloer
• 1e verdiepingsvloer 		: houten vloer
• 2e verdiepingsvloer 		: houten vloer
• wanden   			             : buitenwanden uitgevoerd in baksteen
                                               binnenwanden uitgevoerd in baksteen
• dak    	                             : zadeldak, houten spanten en gordingen, beschoten met Eternit plaat en gedekt met gebakken pannen. 
                                                De goten en hemelwaterafvoeren zijn van zink.  
• kozijnen   	                      : De buitenkozijnen zijn grotendeels uitgevoerd in hout met gedeeltelijk dubbel glas. 
                                                Aan de achterzijde zijn enkele rolluiken toegepast.             
                                                 De binnen kozijnen zijn uitgevoerd in hout met originele paneeldeuren en beslag. 
• isolatie  			                   : thermopane glaswerk, dakisolatie (glaswol) binnenzijde
• inhoud   			                   : woonhuis 900 m3 
• oppervlakte 			           : gebruiksoppervlakte Wonen 210 m2 
                                                 overige inpandige ruimte : 19 m2 
                                                 open kapschuur 40 m2 Chillruimte 55 m2
• energielabel   			        : D (geldig tot 17-12-2025)
• cv-installatie  	                    : Nefit HR-combi ketel (2002), verwarming middels radiatoren
 	 
Indeling begane grond       
woonkamer en zitkamer (33.7 m2)
Deze woonkamer is voorzien van een houten parketvloer. Er is een goede lichtinval en er zijn fraaie zichtlijnen aan de voorzijde, achterzijde en 
zijkant over de tuin en omgeving. Aansluitend is de zitkamer waar u apart kunt verblijven. Wel zo fijn! De woonkamer en zitkamer sluiten op elkaar aan. 

keuken (10.5 m2)
De keuken met tegelvloer is ingericht met een inbouwkeuken met kooktoestel op gas met oven, koelkast en afzuigkap.
 Een fijne, centraal gelegen werkplek waar u zicht heeft op het buitengebeuren en goed contact heeft met de woonkamer.
Vanuit de keuken bereikt u het terras aan de achterzijde en de gang naar de overig vertrekken. 

hal (6.7 m2)
Deze entree is fraai opgezet met een authentieke tegelvloer en geeft toegang tot de verdieping middels een houten trap. 
De meterkast is voorzien van een stoppen verdeelkast. Tevens toegang tot de huiskelder.

kelder (19.3 m2)
Vanuit de hal is de huiskelder te bereiken. Een prima plek voor uw voorraad.

Gang met portaal achterzijde (8.5 m2)
Deze gang bereikt u vanuit de keuken. Er is ruimte voor uw garderobe en toegang naar het toilet en badkamer. 
Tevens doorgang naar de bijkeuken en voormalige schuur/garage. 

toilet (1.6 m2)
Voldoende ruim opgezet, voorzien van staand closet.

badkamer (4.5 m2)
Deze badkamer is uitgerust met een ligbad en wastafel.

bijkeuken (16.4 m2)
Deze ruimte is voorzien van een aanrechtblok en biedt plaats aan de wasmachine en droger. Tevens is hier de cv-installatie geplaatst en is er toegang tot het buitengebeuren.

ontspanningsruimte (28.1 m2) 
Hier treft u een inpandig gerealiseerde ontspanningsruimte welke divers te gebruiken is. Zeer geschikt voor hobby/beroep/aanleunwoning/praktijkruimte enz. 
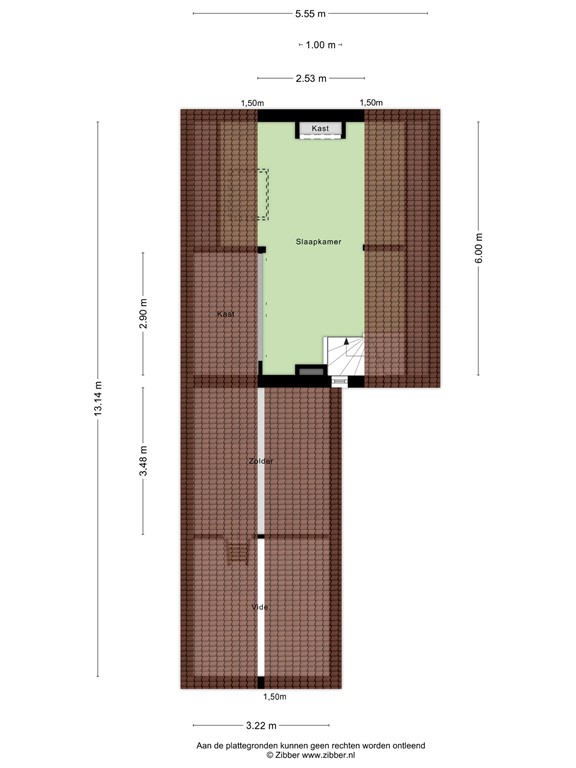
Via een metalen trap komt u op de verdieping met een toegang tot de vliering welke dient als opslagruimte.

indeling 1e verdieping
overloop (5.5 m2)
Middels de fraaie houten trap bereikt u de overloop met houten vloer. De overloop geeft u toegang tot twee slaapkamers en 
doorgang naar de 3e slaapkamer en badkamer. Via de vaste trap kunt u de 2e verdieping bereiken. 

slaapkamers (11 m2, 13.6 m2 13.6 en 18 m2) 
De slaapkamers zijn voldoende ruim opgezet en allemaal voorzien van een houten vloer. Vanuit de slaapkamers 
kijkt u mooi uit over de tuin en omgeving. De ouderslaapkamer is voorzien van een inloop kleding kast.

badkamer (7 m2)
Deze badkamer is vernieuwd met wanden in stucwerk. Deze badruimte is opgezet met wastafel, toilet en douche.
	
2e verdieping (14.2m2)
Deze ruimte is ingericht als slaapkamer met een houten vloer, mooie vormgeving met karaktervolle elementen  en een Velux dakraam. 

tuin en buitengebeuren

Open schuur (40 m2)
Ruim bemeten kapschuur met betonnen wanden en verharde vloer. Aan de voorzijde is via de openslaande poort toegang tot deze ruimte. 
Deze dient als fietsenstalling en opslag gereedschap

Chillruimte (55 m2)
Deze ruimte is opgezet met een geheel glazen front. Er is airco aanwezig om deze ruimte snel te verwarmen of te koelen. 
Tevens een houtkachel om van het vuur en warmte te genieten. 
Geweldige ”chillplek” waar u van uw vrije tijd kunt genieten met zicht naar het bos en de tuin.  

Via de ruim bemeten oprit komt u bij de kapschuur en de chillruimte. Tevens toegang tot de woning met terras aan de achterzijde en tuin. Deze is ingericht zoals je bij deze woning mag verwachten. Er is voldoende plek om te spelen en te ontspannen. Er staan enkele bomen welke deze locatie tot een unieke, eigen plek, maken. Dit zeker in combinatie met het aan de achterzijde gelegen bos. De tuin is omheind en voorzien van voldoende groen om een beschutte tuin te kunnen ervaren. Een mooie plek om te verblijven en te genieten van de natuur!  Aan de voorzijde is de tuin ingericht met vaste planten en gazon in combinatie met paden. 

Algemeen 
Deze boerderijwoning is in 1940 deugdelijk gebouwd en daarna aangepast tot de huidige situatie. Het is goed mogelijk om er een levensloopbestendige woning van te maken. 
Qua uitstraling is er een plaatje ontstaan zoals je een woonboerderij met karakter voor kunt stellen. Oud met nieuw verweven tot een fraai geheel. Er zijn vele mogelijkheden in de aangebouwde ontspanningsruimte en chillruimte welke, in combinatie met de ruim bemeten tuin vele mogelijkheden met zich mee brengt.
De bestemming is Wonen en deels agrarisch en bos aan de achterzijde. 
Het is al vroeg in het jaar genieten op deze fraaie plek in Hout-Blerick. 
Een goede en rustige locatie om er uw woonplek van te maken… rand van het buitengebied, bos als achtertuin, 
de maas en de bijbehorende natuurlijke omgeving!

Kenmerken